More —
Brick, Bright, Freehold & Best Location!
57 Byron Street, Cambridge, Waipa, Waikato 3434
Positioned in one of Leamington’s most sought-after streets, this modern brick home offers the ultimate blend of comfort and convenience. Whether you are downsizing or looking for a low-maintenance family base, this property ticks every single box.
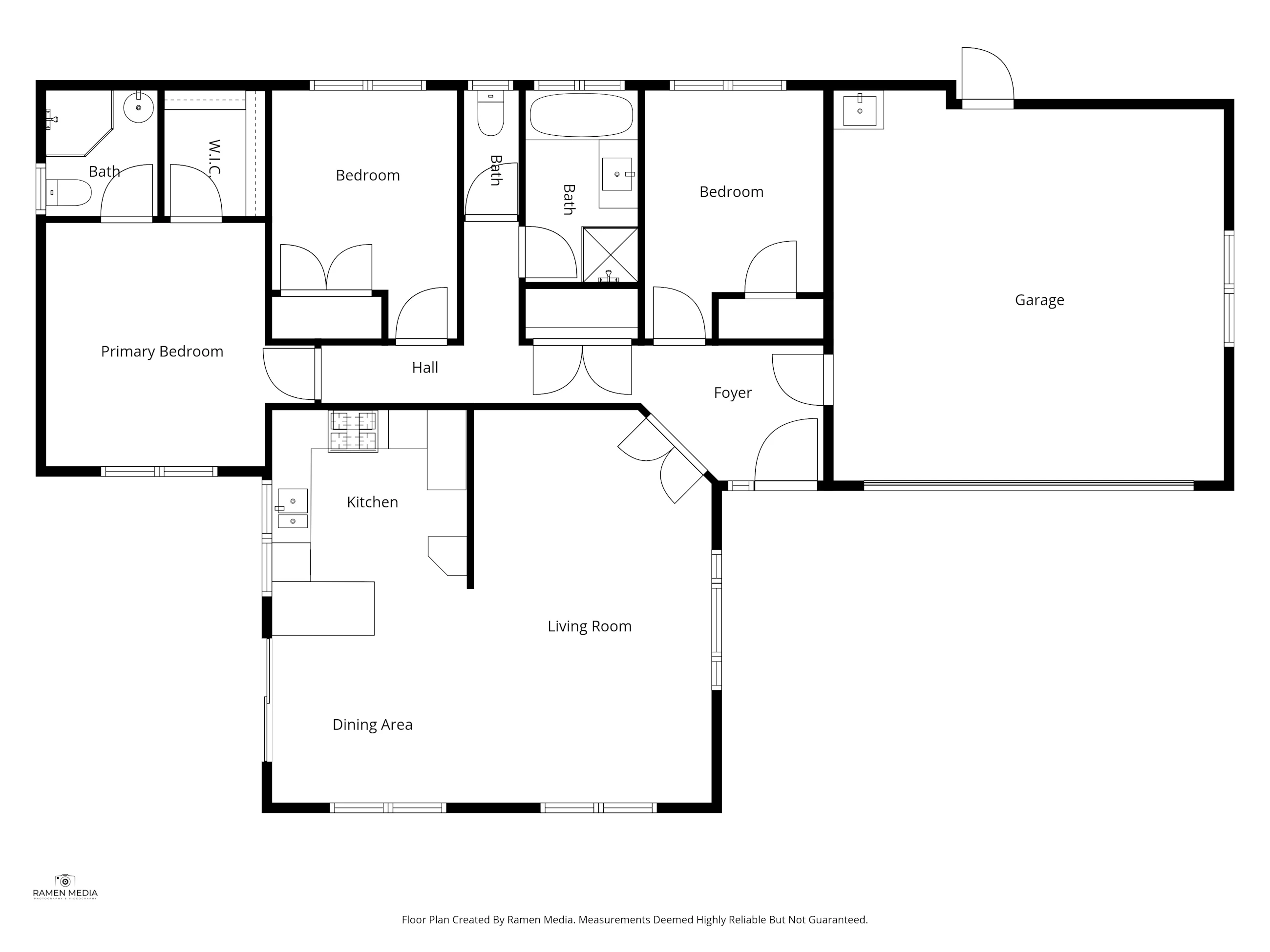
• Superior Comfort: 3 Bedrooms, 2 Bathrooms (including master with en-suite and walk-in robe).
• Built to Last: Solid brick construction, fully insulated, and double-glazed throughout for peace of mind.
• No Car Needed: A stone's throw from Leamington Domain and a short stroll to shops, medical centres, and transport. You are truly in the heart of it all.
• Secure & Spacious: Fully fenced for pets, kids or grandkids, with a double internal access garage for extra security and storage.
The clock is ticking! This property is vacant and ready for an immediate move-in. Don't wait for the sold sign—come to the Open Home this weekend or call today for a private viewing at a time that suits you.
Deadline Closes 12pm, Wednesday 20th May 2026 (unless sold prior).
Give Harry, or one of our friendly More-Re team a call for more information or to view.
From the Streets to the Suites
Armed with an unwavering commitment to client satisfaction, Harry brings a fresh perspective to the Real Estate arena. Harry prides himself on his ability to forge genuine connections, foster trust, and loyalty among clients.
Whether it's finding the perfect starter home for a young couple, securing a prime investment property, or orchestrating the seamless sale of a cherished family home, Harry approaches each transaction with integrity, enthusiasm, and dedication to achieving the best possible outcome for you.
With Harry Singh at the helm, you can rest assured that you have a knowledgeable and compassionate advocate by your side, guiding you through every step of your Real Estate journey with professionalism, expertise, and a touch of urban flair.




























